首页
关于我们
企业概况
荣誉资质
大事记
企业浏览
企业视频
产品中心
新品推荐
建筑型材
家装型材
系统门窗
装饰型材
工业型材
生产系统
智能装备
质量管理
工程案例
资讯动态
企业动态
行业资讯
客户服务
销售网点
联系我们
Language
简体中文
English
ไทย
Filipino
Kiswahili
Français
Deutsch
لالعربية
Kreyòl Ayisyen
Bahasa Melayu
Українська
Español
Lang
简体中文
English
ไทย
Filipino
Kiswahili
Français
Deutsch
لالعربية
Kreyòl Ayisyen
Bahasa Melayu
Українська
Español
首页
关于我们
产品中心
生产系统
工程案例
资讯动态
客户服务
联系我们
新品推荐
建筑型材
家装型材
系统门窗
装饰型材
工业型材
您现在的位置:
首页
-
产品中心
-
产品详情
系统门窗
系统门窗
System Doors
永恒创新、利益共享、坚定追求
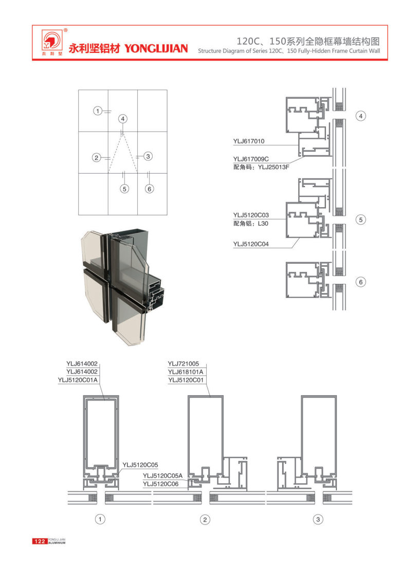
明框、隐框、半隐幕墙
120C、150、152系列明框、隐框、半隐框幕墙
120C、 150, 152 series visible frame, hidden frame, semi hidden frame curtain wall
详细图纸
返回列表
在线客服
代理招商
咨询电话
咨询电话:
0757-88809016
返回顶部